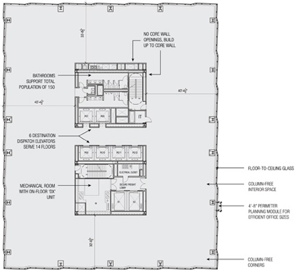
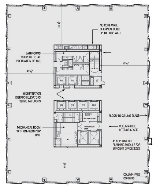
Floor Plans

Key Features

22,500 RSF, column­‐free floor plates support maximum planning flexibility

4’8’’ planning curtain wall module provides for efficient office sizing

10’0’’ finished ceilings at perimeter offices

Column­‐free corners provide sweeping views from executive offices/conference rooms

Floor to ceiling glass provides abundant natural light